产品介绍:
TK9563X630X2S数控交换回转工作台是双工位交换式卧式数控机床的理想配套附件,整体结构分转台和交换台两部分。其中转台部分工作时可按主机控制指令,完成交换托盘和主轴的定位刹紧以及与主机相协调的各种分度运动。交换台部分能使两个托盘自动实行工作交换。该回转工作台配合主机可实现托盘交换及托盘刹紧松开的全自动化,完成工作的孔、槽、曲面等的高精度的加工
参数表格:

※请用户尽量选用油压,大使用油压为:推荐值+1MPa。
※以上参数以实物为准,如有变动,解释权归本公司。
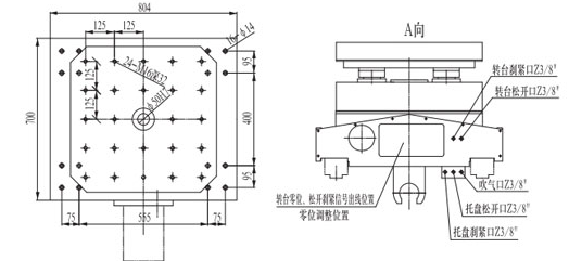
图纸:
